AN800 Centrale di registrazione della combustione 1-4 caldaie
Centrale di registrazione della combustione da 1 a 4 caldaie privo di sonde.
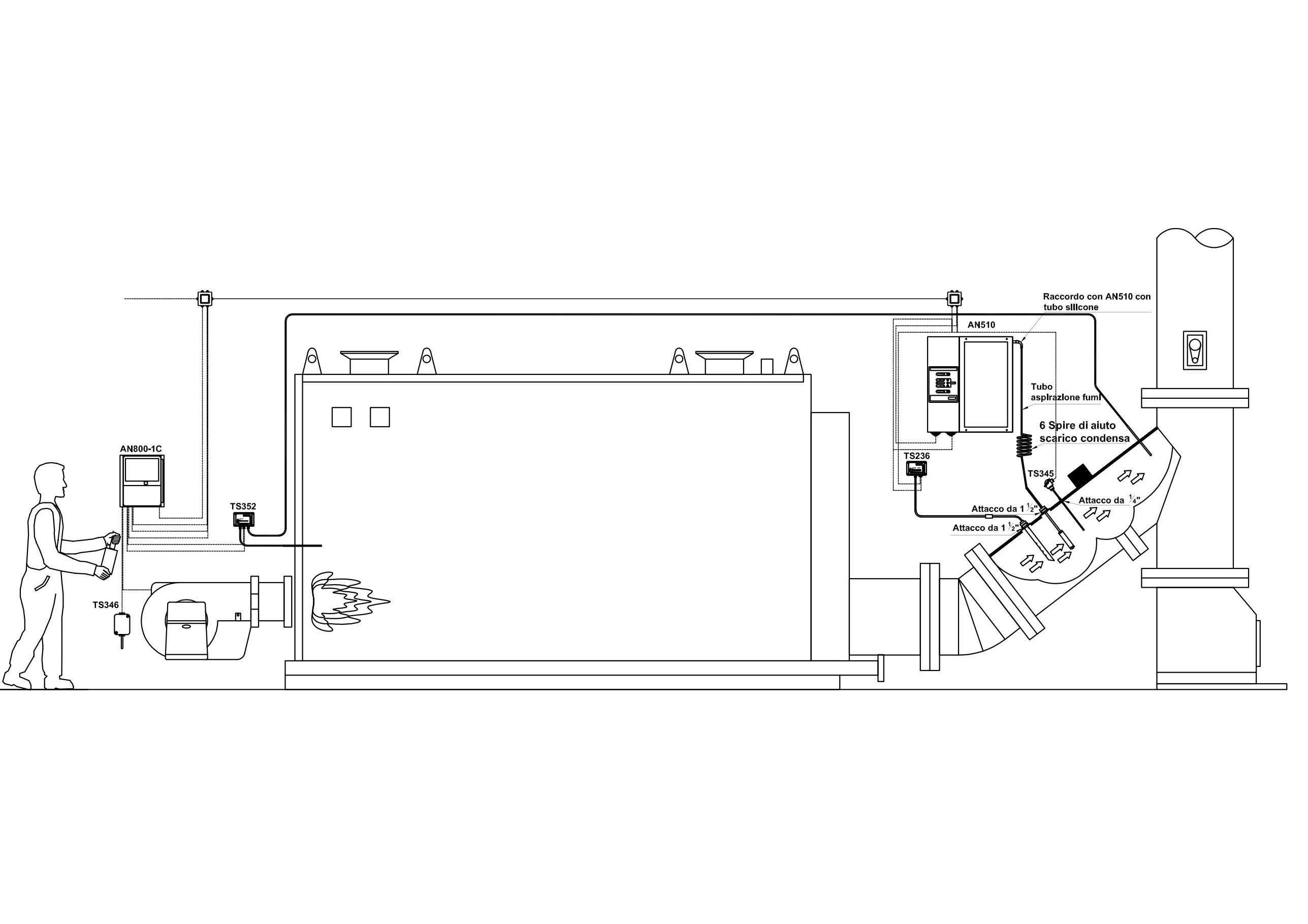
L’Unità Centrale AN800 è l’apparecchiatura principale del sistema fisso di analisi dei fumi, che gestisce i segnali provenienti dalle sonde periferiche installate sulle caldaie (Max 4). La centrale è contenuta in una custodia in polipropilene con porta trasparente in policarbonato e con grado di protezione IP65. Sul pannello frontale è presente un display grafico 10.1 pollici a colori Touch. Gestito da Windows10
All’interno della custodia sono montati i seguenti circuiti elettronici:
La Scheda Principale comprende un microcontrollore a 16 bit che elabora tutti i dati in entrata, li visualizza sul display e li memorizza in una memoria Flash da 8Mb più memoria Panel PC 30Giga. Inoltre gestisce i relè d’allarme. Può dialogare con l’esterno tramite Lan, USB, uscita RS232 oppure RS485 isolata tramite protocollo Modbus Rtu binario. I dati vengono aggiornati circa ogni secondo. Il registro Dati validi indica se considerare o meno i dati presenti negli altri registri. Il valore diventa 1 quando la caldaia ha il bruciatore a regime, e diventa 0 non appena il bruciatore si spegne.
Prodotti Correlati
Espandi le tue opzioni di scelta



